SCHÖNGRÜN
Umgebung
Fassade
Schnitt
5.5 Zimmer Wohnung
Flexible Aufteilung
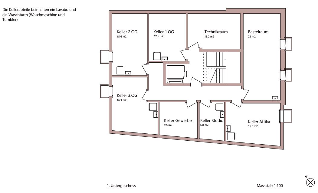
Untergeschoss
Kaufpreise
Kontakt